
【嘉悅府】包裹浮華的靜謐與溫柔

項目信息
/
地址:嘉悅府
城市:中國 杭州
戶型:排屋
面積:230㎡
風格:現代簡約
設計施工:浙江南鴻裝飾
簡單的黑白灰,是包裹浮華的一層堅強外衣。它是克制,是秩序,更是一種理性的優雅。

本案整體的空間調性沉穩又不失氣場,軟裝搭配同樣從容有序,黑白灰的姿態利落分明,空間在靜默的外表下蘊蓄著堅定的力量。人與居室在此相生相長,于無言中變幻出無數的可能性。



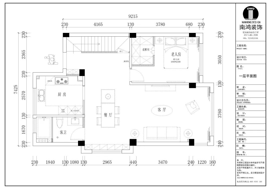
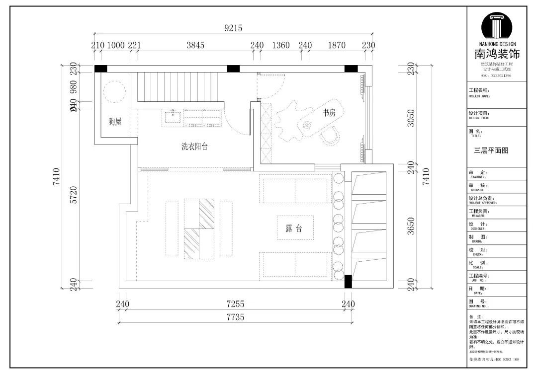
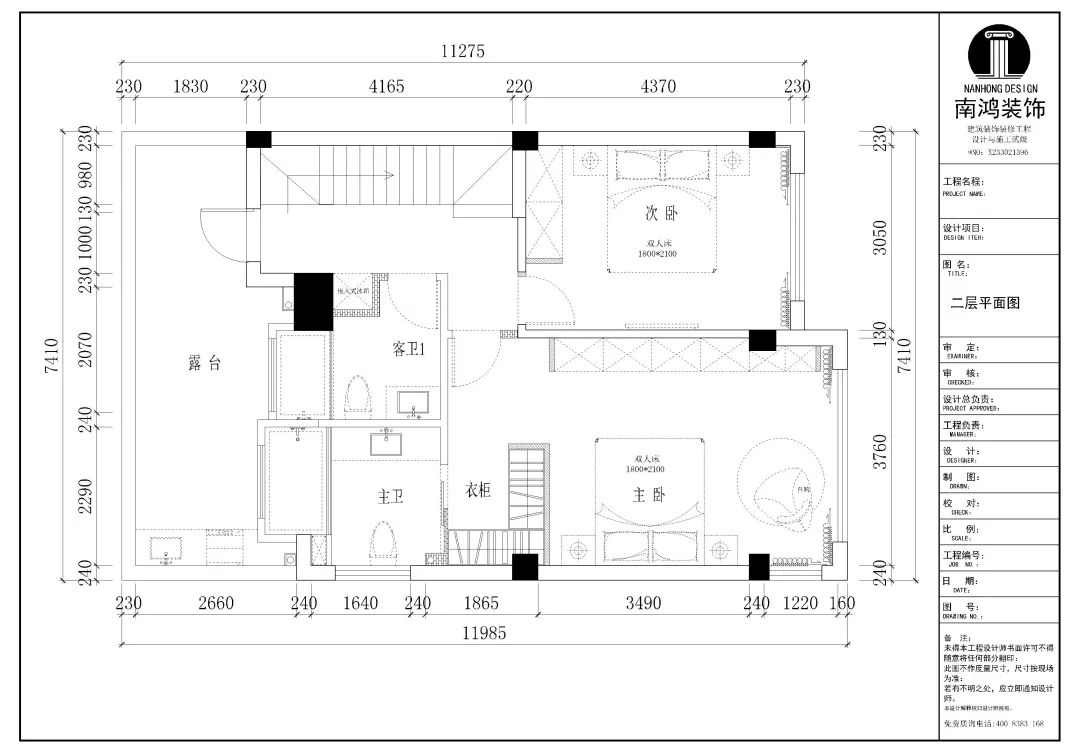
【戶型設計】



客廳 / Living Room


客廳的色彩柔和淡然,不會給人任何視覺壓力。空間結構方正,一絲不茍,淺色硬包對位巖板背景,“簡”與“奢”于無形中彼此碰撞,生發設計魅力。長款磨砂布藝沙發能容納多人聚會談天、娛樂休閑,燈光也在局部適時補足,家的暖意緩緩四溢,微微在發燙...



空間依靠精密優化的比例細節和富有層次的布局規劃,搭建出美學與質感結合的卓越家居體驗。
餐廳 / Dining Room


通透的布局將客廳和餐廳連為一體,空間動線自由靈活,方便日常走動。餐廳沿窗位置設計出高柜+矮柜的組合,收納展示一體,良好的光線也令三餐美食更生滋味。


家的設計無法被量化,設計師所做的是發掘每位家庭成員的需求、生活方式,為他們的愛好、習慣設置恰當安放的地方,當一切都被妥帖完成,空間就能自然地成為一曲和諧樂章。
廚房 / Kitchen

潔凈白色主導的中廚空間看起來格外的清爽明亮,冰箱做內嵌,隱形式設計做到了讓視覺高度統一!
臥室 / Bedroom


臥室以不同深淺的灰色為框架打造,簡潔的硬包做背景,格調素雅,簡約的高級感撲面而來,空間無比靜謐舒適。
衛生間 / Bathroom


衛生間則用瓷磚的天然肌理作為裝飾的主導元素,在黑色外表的包裹和暗示下,空間衍生出靜謐的高級。
免費
免費申請戶型規劃
專屬設計師免費1對1全程服務
已經有3777人申請
24小時免費咨詢電話
400-8800-618
你家預算
108080元